Home
Masterplanning
Architecture
Industrial
Interior
Profile
Contacts
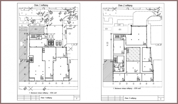
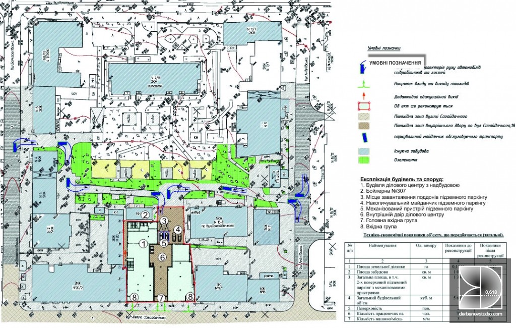
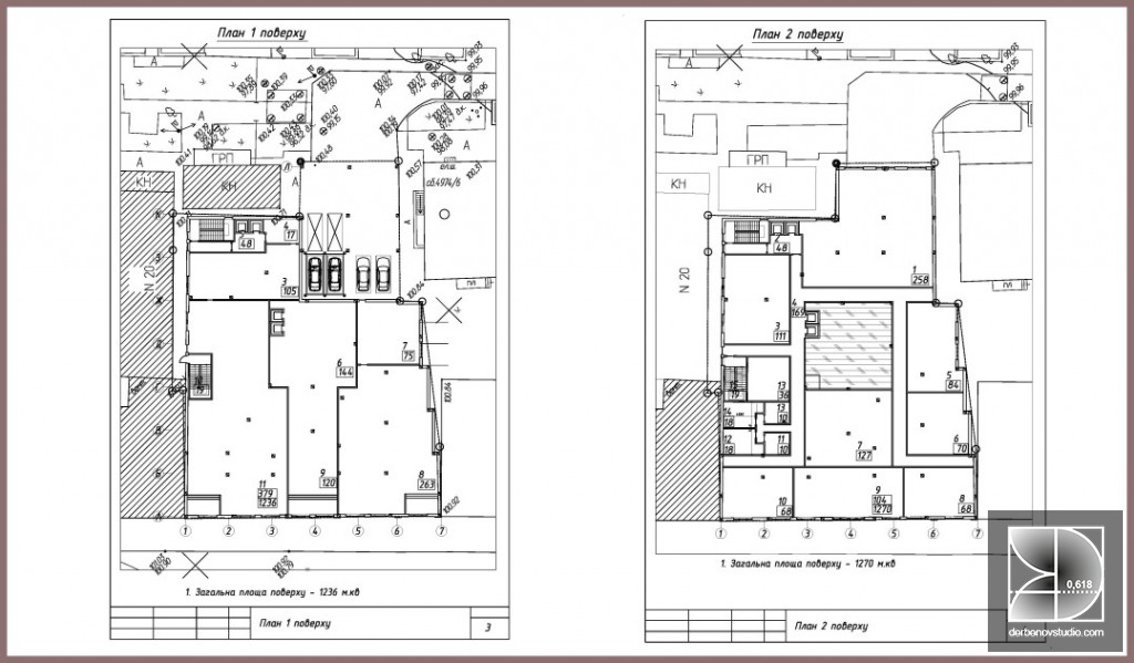
Public buildings
Sagaydachnogo str